2 rue Robert Schuman, 44400 Rezé
Locaux Bureaux Commerces

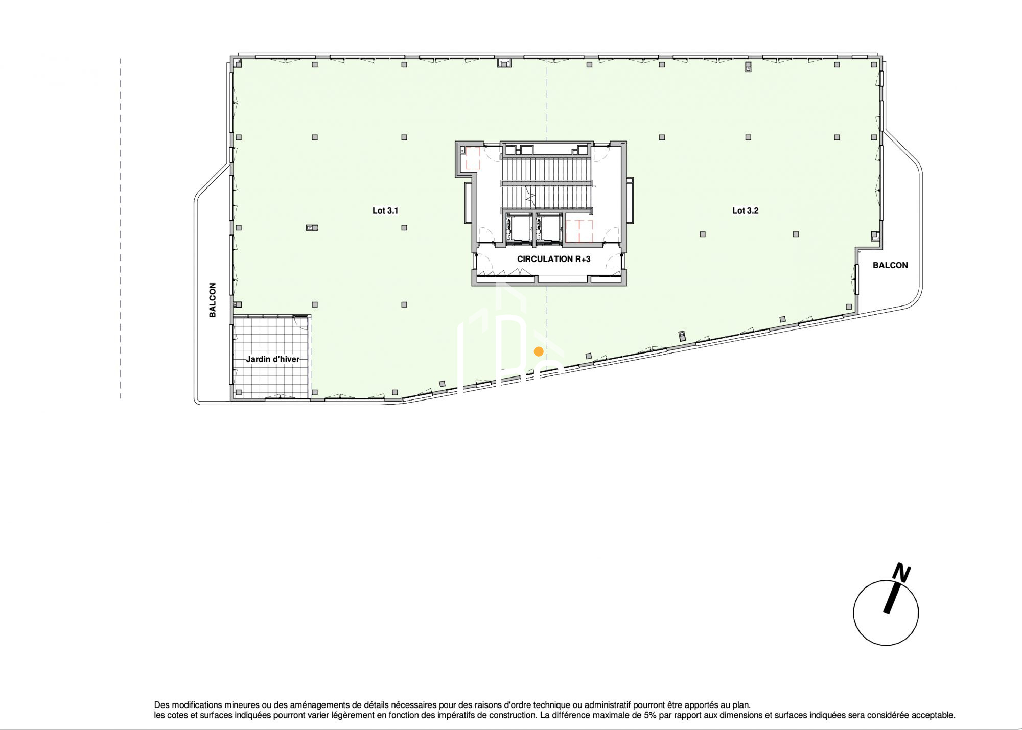
Sainte Luce sur Loire - Plateau de bureaux 346 m² à vendre

Rue Jules Verne, Sainte-Luce-sur-Loire, 44980
977 418 €

Description


À vendre plateau de bureaux d'une surface totale d'environ 346 m² disposant de 8 places de stationnement en sous-sol.

Au (R+3) d'un immeuble tertiaire situé rue Jules Verne à Sainte-Luce-sur-Loire à proximité immédiate de toutes les commodités : commerces de détail, restaurants, services, pharmacie...
L'accès est facilité par la proximité de l'autoroute A811 (à 8 kms) et de la gare de Nantes (à 8 kms égalements). Le centre commercial Leclerc Paridis, avec ses nombreux commerces, se trouve à seulement 3 kms. Le site est desservi par les transports en commun de NANTES Métropole (NAOLIB ligne Chrono bus C7, arrêt 'La grille').

- Plateau de bureaux livré brut non cloisonné d'environ 320 m2 et 26 m² environ de parties communes.

- 1 balcon de 27 m2 environ

- Jardin d'hiver de 23 m2 environ

- Accès sécurisé par visiophone/digicode

- Ascenseur

- Accès personnes à mobilité réduite (PMR)

Livraison début 2026.
Vous pouvez nous joindre au 02 55 07 86 35 Sonia Bernoville


Honoraires inclus de 3% HT à la charge de l'acquéreur. Prix hors honoraires 948 950 € HT. Non soumis au DPE. Les informations sur les risques auxquels ce bien est exposé sont disponibles sur le site Géorisques : georisques.gouv.fr.

Votre conseiller Locaux Bureaux Commerces : Sonia BERNOVILLE
Agent commercial (Entreprise individuelle)
RSAC ADC 4401 2025 000 000 874
RCP RCACO-24-028977 GALIAN SMA BTP.
LOCAUX-BUREAUX-COMMERCES 02 55 07 86 35
Sonia BERNOVILLE
soniabernoville@groupelbc.com
0255078635

Cette annonce vous intéresse ?

 Location