2 rue Robert Schuman, 44400 Rezé
Locaux Bureaux Commerces

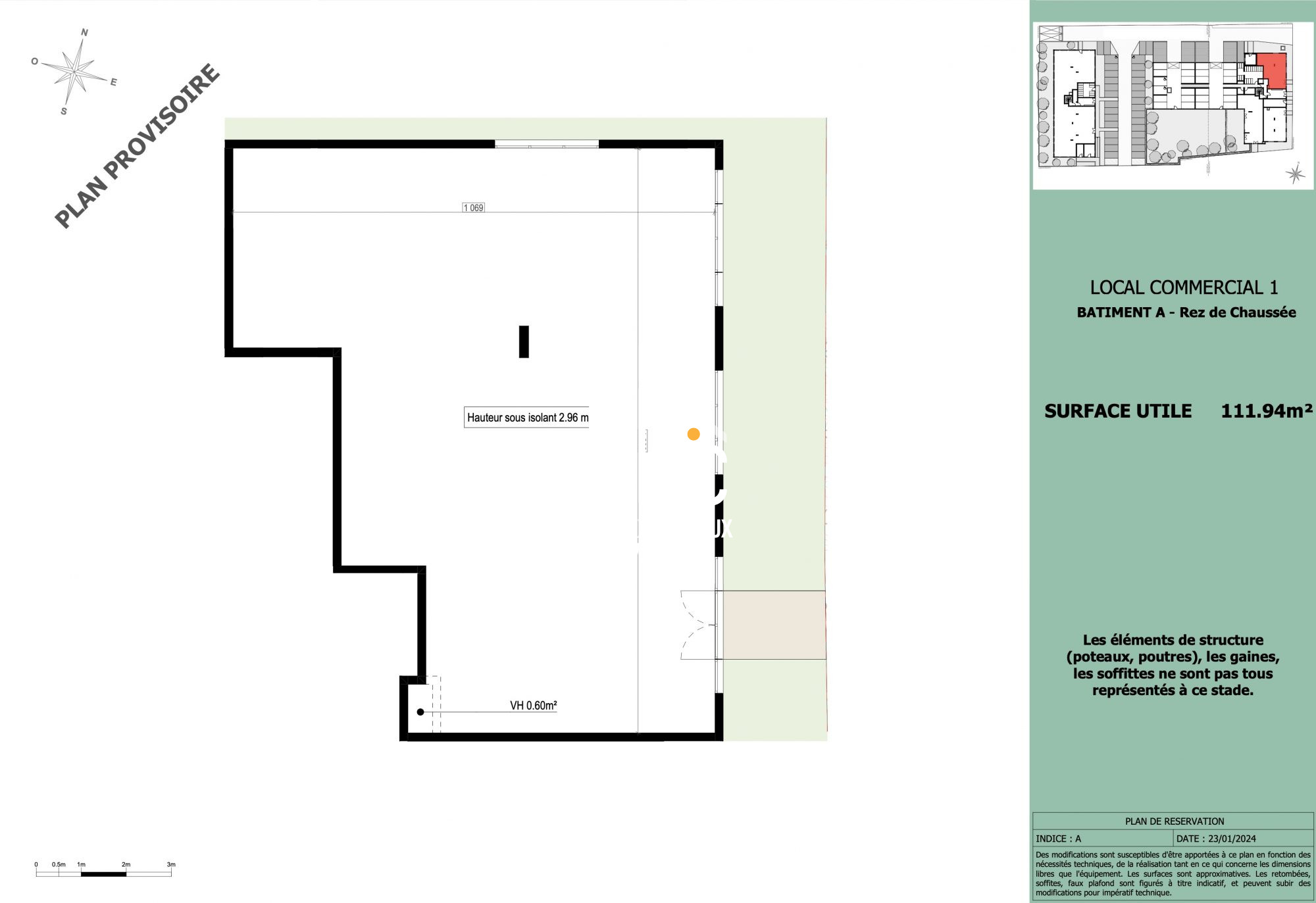
Auray - À vendre local commercial neuf 112 m²

Avenue du général de Gaulle, Auray, 56400
272 910 €

Description


Commune d'Auray Local commercial neuf à vendre en VEFA de 112 m2 environ

Au rez-de-chaussée d'un immeuble mixte d'habitation et de commerce

Situé sur un axe passant entre la gare SNCF TER TGV et le port pittoresque de Saint-Goustan

La cellule sera livrée brute de béton, réseaux et fluides en attente, vitrines posées

Livraison prévisionnelle 4ème TRIMESTRE 2025

Vous souhaitez installer un commerce de proximité ou une activité de services ?

Contactez nous sans attendre au 02 55 07 86 35



Honoraires inclus de 6% HT à la charge de l'acquéreur. Prix hors honoraires 257 462,30 € HT. Non soumis au DPE. Les informations sur les risques auxquels ce bien est exposé sont disponibles sur le site Géorisques : georisques.gouv.fr.

Votre conseiller Locaux Bureaux Commerces : Nicolas FOULON
Agent commercial (Entreprise individuelle)
RSAC ADC 4401 2025 000 000 873
RCP RCACO-20-016231 GALIAN SMA BTP.
LOCAUX-BUREAUX-COMMERCES 02 55 07 86 35
Nicolas FOULON
nicolasfoulon@groupelbc.com
0255078635

Cette annonce vous intéresse ?

 Location