2 rue Robert Schuman, 44400 Rezé
Locaux Bureaux Commerces

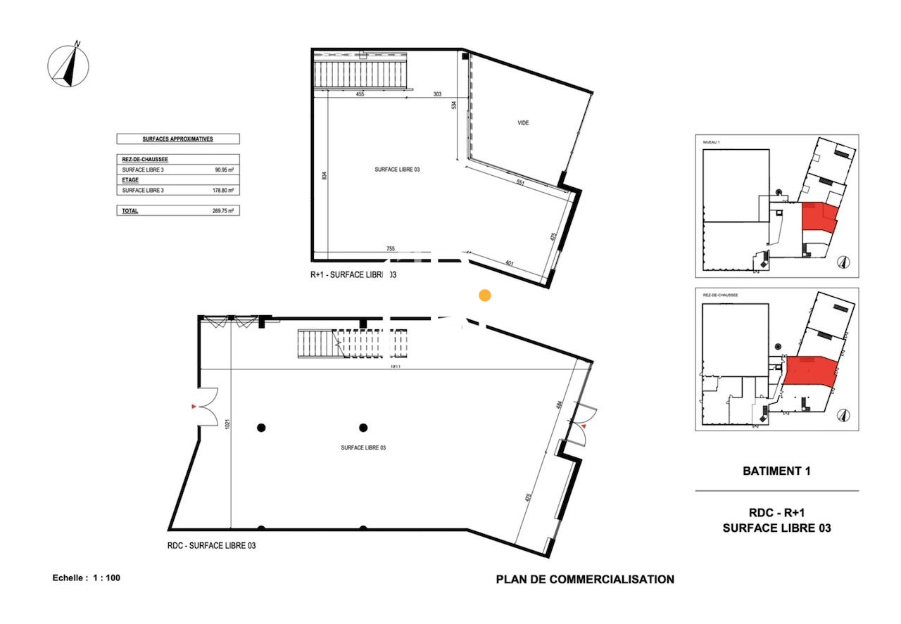
Ancenis - Espace de bureaux neuf 269 m² à louer

46 rue andré ampère, Ancenis-Saint-Géréon, 44150
3 350 €

Description

Offrez-vous un espace exclusif à Ancenis, conçu pour répondre aux besoins des entreprises. Espace de bureaux à louer neuf, livré brut d'environ 269 m², situé à proximité des principaux axes routiers (autoroute A11, rocade), cette zone accueille de nombreuses entreprises industrielles, artisanales et de services (Manitou, Terrena, Toyota et la fonderie Bouhyer...).
Points forts :
- Espace modulable : 269 m² répartis sur 2 niveaux
- Situé dans un bâtiment d'environ 3 360 m², ce local bénéficie d'une infrastructure moderne et performante.
- Prestations haut de gamme : Isolation performante, portail sécurisé, vidéosurveillance, accès indépendant, accès aux espaces communs et parking visiteur.
Loyer mensuel HT HC : 3 350 euros
Provision sur charges mensuelles : 190 € HT
Dépôt de garantie : 6700 € HT
Honoraires à la charge du preneur : 10050 € HT
Disponibilité : Immédiate
N'attendez plus et contactez-nous au 02 55 07 86 35 Sonia Bernoville pour visiter ce local d'exception !


Honoraires de 10 050 € HT à la charge du locataire. Provision sur charges 190 € HT/mois, régularisation annuelle. Dépôt de garantie 6 700 €. Non soumis au DPE. Les informations sur les risques auxquels ce bien est exposé sont disponibles sur le site Géorisques : georisques.gouv.fr.

Votre conseiller Locaux Bureaux Commerces : Sonia BERNOVILLE
Agent commercial (Entreprise individuelle)
RSAC ADC 4401 2025 000 000 874
RCP RCACO-24-028977 GALIAN SMA BTP.
LOCAUX-BUREAUX-COMMERCES 02 55 07 86 35
Sonia BERNOVILLE
soniabernoville@groupelbc.com
0255078635

Cette annonce vous intéresse ?

 Location