2 rue Robert Schuman, 44400 Rezé
Locaux Bureaux Commerces

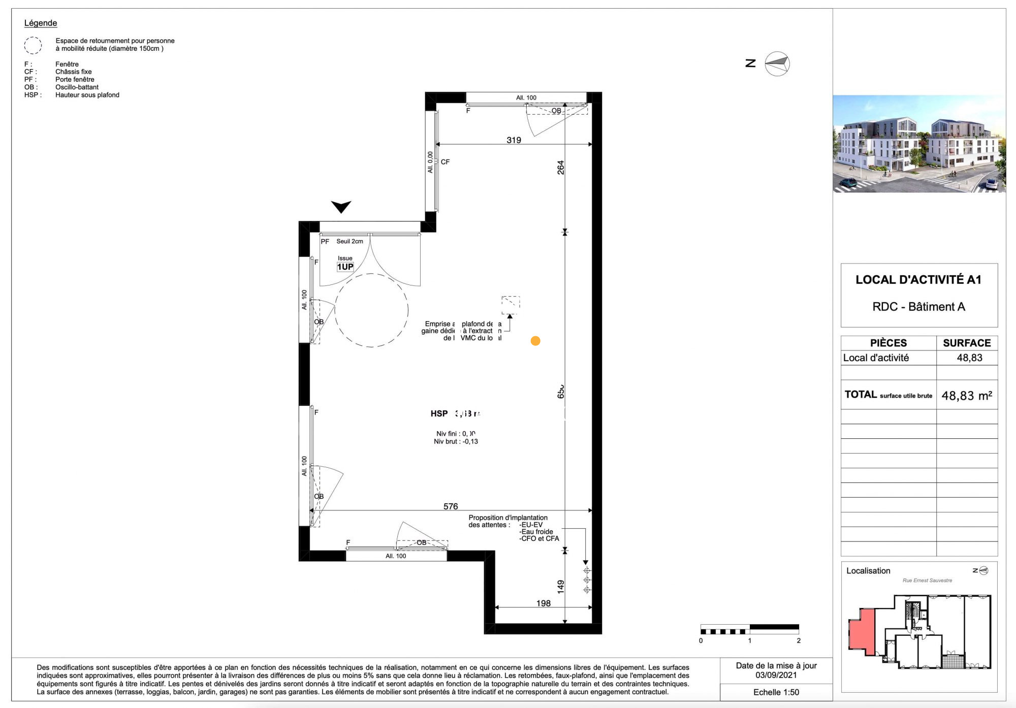
Rezé - À louer espace bureaux 48 m²

2 rue Ernest Sauvestre, Rezé, 44400
961 €

Description


A LOUER ESPACE BUREAUX NEUF REZÉ ROND-POINT DE LA CARRE

Cet espace de bureaux bénéficie d'une excellente visibilité et d'un accès facile. Avec une superficie d'environ 48 m², l'espace est livré brut de béton, avec les réseaux en attente et les huisseries posées.

Le local se trouve dans la zone commerciale Océane, un quartier dynamique et commerçant, à proximité de nombreux services et habitations. Facilement accessible par les transports en commun, avec les lignes de bus C4, 30 et 33 à proximité.

Disponible 1er trimestre 2025. Bail commercial 3/6/9. Dépôt de garantie : 2 mois de loyer HT.

Loyer annuel 11 524 € HT/HC.

Honoraires de commercialisation 25% HT du loyer annuel HT/HC + Frais de rédaction du bail notarié et d'établissement d'état des lieux par un commissaire de justice en sus.

Pour toutes informations complémentaires contactez l'agence au 02 55 07 86 35.


Honoraires de 2 881 € à la charge du locataire. Dépôt de garantie 1 920 €. Non soumis au DPE. Les informations sur les risques auxquels ce bien est exposé sont disponibles sur le site Géorisques : georisques.gouv.fr.

Votre conseiller Locaux Bureaux Commerces : Sonia BERNOVILLE
Agent commercial (Entreprise individuelle)
RSAC ADC 4401 2025 000 000 874
RCP RCACO-24-028977 GALIAN SMA BTP.
LOCAUX-BUREAUX-COMMERCES 02 55 07 86 35
Sonia BERNOVILLE
soniabernoville@groupelbc.com
0255078635

Cette annonce vous intéresse ?

 Location