2 rue Robert Schuman, 44400 Rezé
Locaux Bureaux Commerces

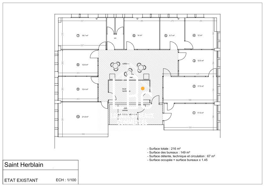
Saint Herblain - À louer plateau de bureaux 216 m²

352 BOULEVARD MARCEL PAUL, Saint-Herblain, 44800
1 260 €

Description


SAINT HERBLAIN ATLANTIS ARMOR

Plateau de bureaux à louer de 216 m², au 1er étage sans ascenseur, bureaux de 10 à 21 m². Entrée indépendante, parties communes comprenant 1 local technique, 1 espace détente, dégagement et sanitaires. Parkings extérieurs mutualisés.

A proximité de la sortie périphérique PORTE D'ARMOR sortie n° 33, de la ligne 1 du tramway arrêt FRANCOIS MITTERAND, à 3 minutes en voiture du centre commercial Atlantis. A 10 minutes de l'aéropport de Nantes ATLANTIQUE
- 10 bureaux avec cloisons modulables
- Baie de brassage
- Chauffage gaz collectif
- Bail 3/6/9/ Professionnel ou bail dérogatoire de 1 mois à 36 mois
- Loyer mensuel : 1260 € HT
- Provision sur charges mensuel : 360 € HT
- Taxe foncière : 1440 €
- Dépôt de garantie : 2 mois de loyer HT
DISPONIBILITÉ IMMÉDIATE
Honoraires de commercialisation 25% du loyer annuel HT, frais de rédaction en sus
Pour plus d'informations contactez-nous au 02 55 07 86 35


Honoraires de 3 780 € à la charge du locataire. Provision sur charges 360 € HT/mois, régularisation annuelle. Dépôt de garantie 2 520 €. Non soumis au DPE. Les informations sur les risques auxquels ce bien est exposé sont disponibles sur le site Géorisques : georisques.gouv.fr.

Votre conseiller Locaux Bureaux Commerces : Sonia BERNOVILLE
Agent commercial (Entreprise individuelle)
RSAC ADC 4401 2025 000 000 874
RCP RCACO-24-028977 GALIAN SMA BTP.
LOCAUX-BUREAUX-COMMERCES 02 55 07 86 35
Sonia BERNOVILLE
soniabernoville@groupelbc.com
0255078635

Cette annonce vous intéresse ?

 Location