2 rue Robert Schuman, 44400 Rezé
Locaux Bureaux Commerces

Nantes Saint Félix - Local professionnel 188 m² à louer

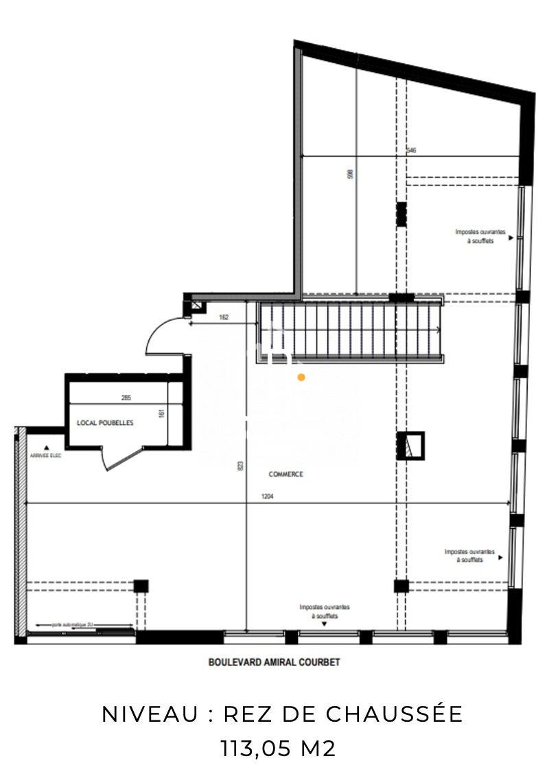
Boulevard Amiral Courbet, Nantes, 44000
3 447 €

Description

A LOUER LOCAL COMMERCIAL NANTES CENTRE, QUARTIER SAINT FELIX
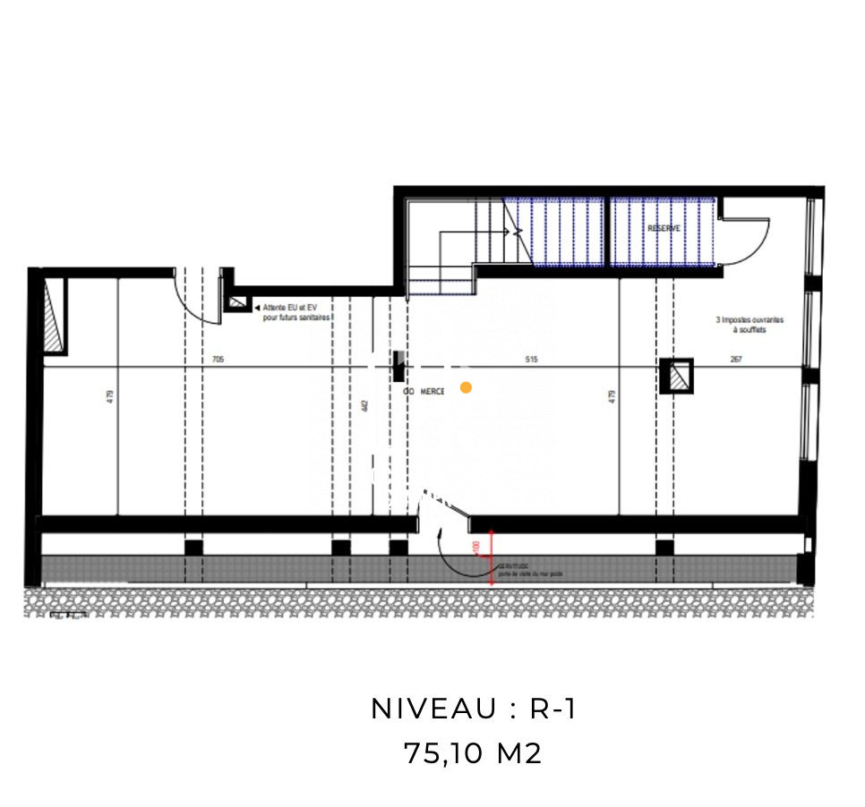
- Surface 188 m² environ sur deux niveaux
- Brut de béton, réseaux en attente huisserie posée
- Parking possible
- Axe passant, proximité immédiate transports et commerces.
- Bail commercial 3/6/9
- Loyer annuel HT/HC 41 360 €
- Dépôt de garantie 3 mois de loyer
- Honoraires de commercialisation 25% HT du loyer annuel HT/HC à la charge du preneur
- Rédaction du bail notarié et d'état des lieux à la charge du preneur en sus des honoraires
Pour plus d'informations contactez-nous au 02 55 07 86 35

Honoraires de 10 340 € HT à la charge du locataire. Dépôt de garantie 10 340 €. Non soumis au DPE. Les informations sur les risques auxquels ce bien est exposé sont disponibles sur le site Géorisques : georisques.gouv.fr.

Votre conseiller Locaux Bureaux Commerces : Nicolas FOULON
Agent commercial (Entreprise individuelle)
RSAC ADC 4401 2025 000 000 873
RCP RCACO-20-016231 GALIAN SMA BTP.
LOCAUX-BUREAUX-COMMERCES 02 55 07 86 35
Nicolas FOULON
nicolasfoulon@groupelbc.com
0255078635

Cette annonce vous intéresse ?

 Location